Rif: 1109
MONTALDO DI MONDOVI'
CUNEO
San Giacomo di Roburent, località Belvedere, in palazzina bipiano, appartamento ordinato e completamente ristrutturato con splendida esposizione panoramica verso la vallata ed i monti circostanti.
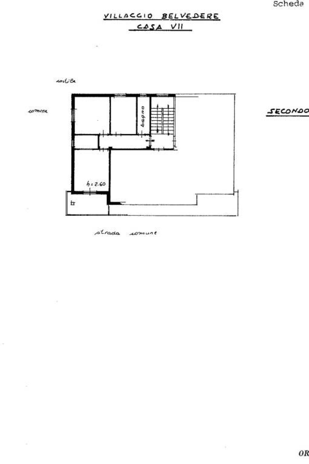
L'immobile è composto da ingresso, 2 camere da letto, sala con caminetto e angolo cottura, bagno con vasca e terrazzo.
La dotazione è completata da un ampio box auto situato accanto al portone.
La posizione dello stabile consente di raggiungere il centro del paese e tutti i principali servizi e negozi, anche a piedi, in brevissimo tempo.
San Giacomo è un paese di montagna molto soleggiato ed è inoltre una località turistica che offre svariate attività per bambini, lunghe passeggiate ed escursioni anche impegnative. Gli impianti sciistici aperti durante la stagione invernale si estendono tra i pendii del Monte Alpet (1600 m) e il Bric Colmé (1300 m).
Fantastica la cucina tipica locale e regionale servita anche dagli agriturismi nei dintorni.
Il prezzo richiesto è di Eu. 55.000.
L'immobile è composto da ingresso, 2 camere da letto, sala con caminetto e angolo cottura, bagno con vasca e terrazzo.
La dotazione è completata da un ampio box auto situato accanto al portone.
La posizione dello stabile consente di raggiungere il centro del paese e tutti i principali servizi e negozi, anche a piedi, in brevissimo tempo.
San Giacomo è un paese di montagna molto soleggiato ed è inoltre una località turistica che offre svariate attività per bambini, lunghe passeggiate ed escursioni anche impegnative. Gli impianti sciistici aperti durante la stagione invernale si estendono tra i pendii del Monte Alpet (1600 m) e il Bric Colmé (1300 m).
Fantastica la cucina tipica locale e regionale servita anche dagli agriturismi nei dintorni.
Il prezzo richiesto è di Eu. 55.000.
Consistenze
| Descrizione | Superficie | Sup. comm. |
|---|---|---|
| Principali | ||
| Immobile - 2° piano | 75 Mq | 75 Mqc |
| Accessorie | ||
| Terrazza - 2° piano | 10 Mq | 3 Mqc |
| Box/Garage - piano terra | 15 Mq | 8 Mqc |
| Totale | 86 Mqc | |







